長久手市 丁子田戸建
- 価格
- 4,999万円(税込)仲介手数料なし
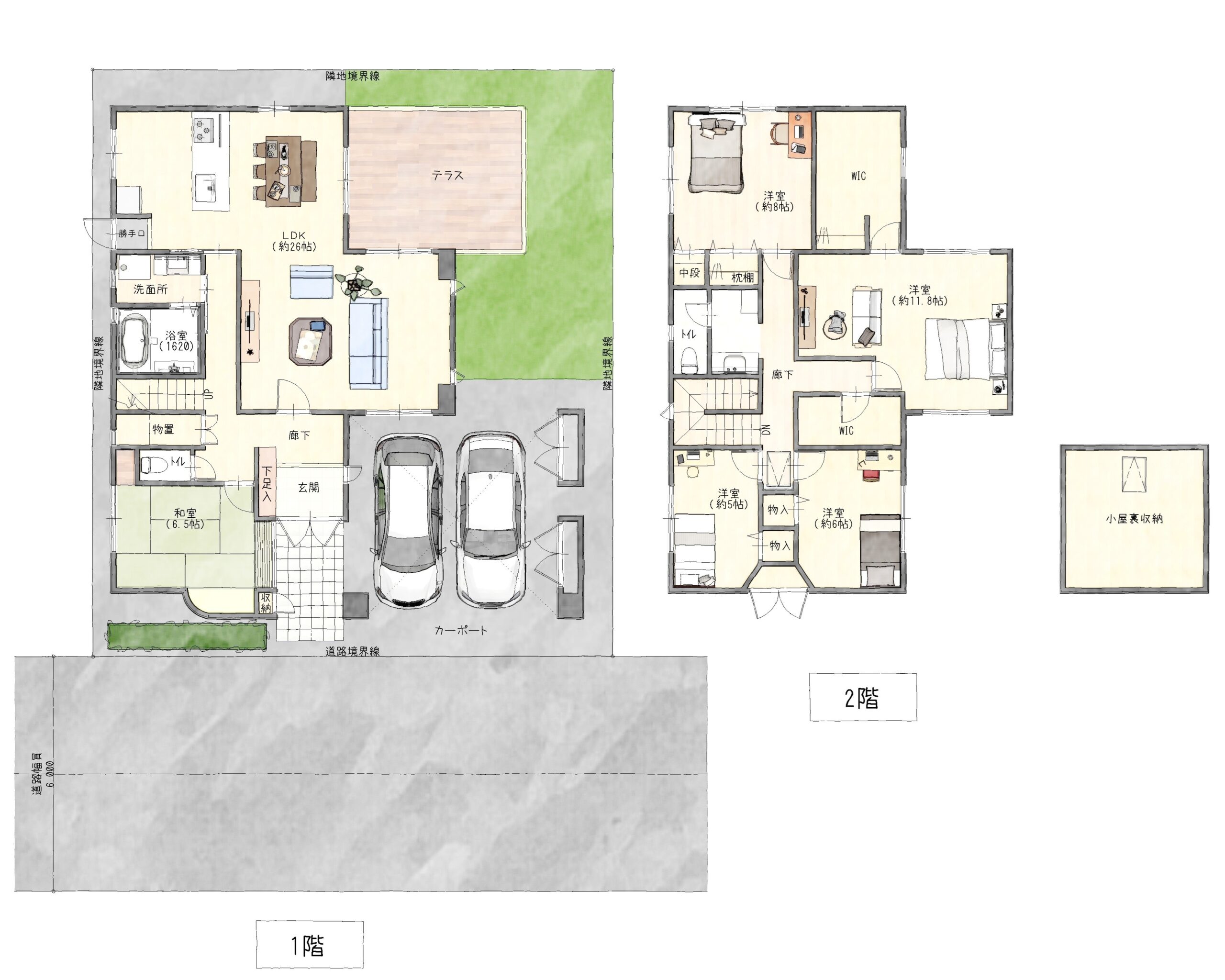
- 間取り
- 5SLDK
- 所在地
- 愛知県長久手市丁子田
- 交通
- 東部丘陵線/リニモ / 杁ヶ池公園駅 徒歩30分
[バス利用可] バス 20分 丁子田 停徒歩1分
- 専有面積
- 211.75m²(公簿)
- 構造
- 木造2階建
- 土地権利
- 所有権
- 築年数
- 1992年11月
- 現況
- 即引渡可
- 駐車場
- 屋根付き駐車スペース2台分
- 取引形態
- 売主
取り扱い会社 ニッカ不動産 名古屋緑店 運営 / ニッカ不動産株式会社
【特徴】
■ミサワホーム施工!■リノベーション物件♪
■屋根付き駐車場2台分!
【その他】
~主なリノベーション内容~◆キッチン、浴室交換
◆トイレ、洗面台交換
◆クロス、フローリング貼替
◆ハウスクリーニング等
【中古】×【リノベ】ニッカ不動産おすすめ住戸♪
現代に相応しい間取り・住宅設備機器を取り入れ、生活をサポート致します♪
不動産ご紹介からリノベーションまで一貫サポートのニッカ不動産にお任せ下さい!
こだわりPOINT!
【ミサワホーム施工物件!~ハイグレードのセンチュリーシリーズ~】
室内リノベーション物件!屋根付き駐車スペース2台分♪タイルテラス付きの開放感ある専用庭!周辺には商業施設も多数あり!住宅ローン減税対象♪
電話でのお問い合わせはこちらまで
- 名古屋緑店
- 0120-68-7549
























































